SiTECH3D Vol.143 3Dモデルは🆗でも
どもサイテリストぱんだ🐼です。
さて、今回はサイテック3Dネタです。
それも直折れ問題もありの、勾配もありのと色々と😭
本文の前に、無茶苦茶難しい?ごちゃごちゃした内容なので、上手く伝わるか?また説明が下手なので読んで理解頂けるか😓😓
では、参ります
まずは構造図から

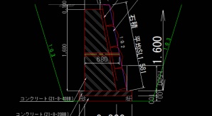
土台は重力式擁壁でそれに石を張るといった構造です。
線形は

線形はこんな感じで直折れとカーブが存在します。
展開図は

天端も勾配ありの、下端も勾配ありです。
では、SiTECH3Dで作ったのがこちら

今回は石張りのカタに路線を設定しています。良い感じですよね⤴️
こちらから見ると・・・・・
ここで、先程の構造で石張りのカタに路線を設定した。
この言葉だけで、この先の展開が分かる方はバリバリの方です!!
え〜っとぱんだは何も考えずに、分からずデータ作成しているので、作成した後に分かりました(笑)
話は戻って。
問題部分を上から見ると👀

うん、何も問題がある様には見えませんが!!
問題個所はこちら

折れ点です😭😭😭😭
それも前後断面に⤵️⤵️⤵️⤵️
あっと、これも折れ点自動作成は使用してません😱
有るのに使わないなんて、KENTEMに喧嘩打ってるみたいになっちゃいますよね😭
この写真の赤丸の所の段差?勾配の変化?気になりますよね‼️‼️‼️‼️‼️
では、何でこうなるか!!
測点で言うとNO.0+1.095の石張り角から左へ向かって上り勾配です。
折れ点の後ろ側に追加測点を入れたのがNO.0+1.693です。
石張りのカタに路線を設定しているので、当然、この追加測点の位置は折れ点部分より上り勾配分、上がってます✋
が、しかし。
この追加測点の石張りのカタは🆗ですが、後ろの重力式擁壁の直壁部分はまだ、折れ点からそれ程進んで無いので、
実際にはここまで上がる事は無いんです💧
どちらかと言うとレベル位でも🆗です😣
う〜ん。
なんでこうなるか?
なぜこうなるか?
答えは。こーなるんです(笑)
これは仕方無いんです⤵️⤵️⤵️⤵️⤵️
なら、こーなる、仕方無い。
って事はこれが正解なんですか??っと
聞かれれば間違いですね😱
この間違いって判断は人それぞれかも知れないので、一概には言えませんが👊
ぱんだ的には全くのアウトです😓
3Dモデル的には🆗でも
施工的には🆖なんです。
では、何が問題なのか‼️
それは‼️‼️‼️‼️‼️
どの構造物を先に施行し、どれを優先し、どこに〇〇をするかで決まります✋
その〇〇は!!!
次回に😵
もったいぶってすいません😅
ではでは、本日もご安全に👷♀
さて、今回はサイテック3Dネタです。
それも直折れ問題もありの、勾配もありのと色々と😭
本文の前に、無茶苦茶難しい?ごちゃごちゃした内容なので、上手く伝わるか?また説明が下手なので読んで理解頂けるか😓😓
では、参ります
まずは構造図から

土台は重力式擁壁でそれに石を張るといった構造です。
線形は

線形はこんな感じで直折れとカーブが存在します。
展開図は

天端も勾配ありの、下端も勾配ありです。
では、SiTECH3Dで作ったのがこちら

今回は石張りのカタに路線を設定しています。良い感じですよね⤴️
こちらから見ると・・・・・
ここで、先程の構造で石張りのカタに路線を設定した。
この言葉だけで、この先の展開が分かる方はバリバリの方です!!
え〜っとぱんだは何も考えずに、分からずデータ作成しているので、作成した後に分かりました(笑)
話は戻って。
問題部分を上から見ると👀

うん、何も問題がある様には見えませんが!!
問題個所はこちら

折れ点です😭😭😭😭
それも前後断面に⤵️⤵️⤵️⤵️
あっと、これも折れ点自動作成は使用してません😱
有るのに使わないなんて、KENTEMに喧嘩打ってるみたいになっちゃいますよね😭
この写真の赤丸の所の段差?勾配の変化?気になりますよね‼️‼️‼️‼️‼️
では、何でこうなるか!!
測点で言うとNO.0+1.095の石張り角から左へ向かって上り勾配です。
折れ点の後ろ側に追加測点を入れたのがNO.0+1.693です。
石張りのカタに路線を設定しているので、当然、この追加測点の位置は折れ点部分より上り勾配分、上がってます✋
が、しかし。
この追加測点の石張りのカタは🆗ですが、後ろの重力式擁壁の直壁部分はまだ、折れ点からそれ程進んで無いので、
実際にはここまで上がる事は無いんです💧
どちらかと言うとレベル位でも🆗です😣
う〜ん。
なんでこうなるか?
なぜこうなるか?
答えは。こーなるんです(笑)
これは仕方無いんです⤵️⤵️⤵️⤵️⤵️
なら、こーなる、仕方無い。
って事はこれが正解なんですか??っと
聞かれれば間違いですね😱
この間違いって判断は人それぞれかも知れないので、一概には言えませんが👊
ぱんだ的には全くのアウトです😓
3Dモデル的には🆗でも
施工的には🆖なんです。
では、何が問題なのか‼️
それは‼️‼️‼️‼️‼️
どの構造物を先に施行し、どれを優先し、どこに〇〇をするかで決まります✋
その〇〇は!!!
次回に😵
もったいぶってすいません😅
ではでは、本日もご安全に👷♀
快測ナビVol.181 自動ブレーキは無い✋
ども快測ナビリストぱんだです🐼
さて、今回は快測ナビの記事です。
タイトルにもありますが、快測ナビに自動ブレーキは有りません!
ん?なになに?
では、🐼なりの解説です。
まずはこちら

感の鋭い人はこの時点で分かるかと😁
この図面は計画図面から色々書込みして作成したぱんだなりの施工平面図です⤴️
う〜ん。ここまで色々書き込む事が良いのかどうか、何気に時間かかるし🌀
では、これをSiTECH3Dでデータ作成する際に気をつけなればならない所は
こちら

この赤丸の2個所です。
1つはカーブとカーブがぶつかる折れ点です。
もう一つは高さの折れ点です。
ではデータ作成します。

出来ました⤴️
黄色の四角は折れ点なので路線で測点をいれてます。
赤色の丸の所は高さの変化点なので縦断で入れてます。なのでどちらも既定断面として登録されてます。
さて、ここから本題です。
ちと、若者の快測ナビの使い方のサポートで入ってる現場へ行った際に快測ナビを見ると、このSiTECH3Dのデータのみで背景にこの図面は配置されて無かったんですよ😅
その若者は、背景図を見る事も無く丁張りを入れてました✋
う〜ん。なんかモヤモヤしますね😓
快測ナビのデータは垂れ流し、リアルタイムな状態なので、常にそのプリズムを立てた個所のデータを表示します。
ロックをしない限り。
そう、自動ブレーキは無いので、自ら変化点、既定断面でブレーキを踏まないと、大変な事になります。
例えば、
バーチカルの起終点
拡幅の起終点、変化点
カーブの起終点
高さの変化点
R同士がぶつかる折れ点
Rの起終点
クロソイドの起終点
あと、何があるかな??
そら、必ず忘れずに、既定断面でロックすれば間違いは無いです。またコメントを入れておけば。
ただ、このコメントはパッケージでないと表示されません✋
このコメントは快測ナビだけの物だから、パッケージ出力でないと無理なんでしょうね💧
さて、何が言いたいかと言うと、必ず背景図は設定して確認しながら、丁張りを入れないと絶対既定断面を忘れる可能性が有るような気がします。
体に必ず既定断面をチェックする、そこに丁張りを入れるって叩き込んでいたらえんですけど、なかなかね〜
また、自分でデータを作成せずに貰った快測ナビのデータで作業してとなれば尚更、施工平面図は必要かなと。
必ず既定断面で丁張りを入れてたら、何も問題無いって意見もその通りだと思います👊
ただ、コメントが無ければ、何に対しての既定断面かは不明です😱
どの様にするかは使う人次第だとは思いますが、ぱんだとしては作り込んだ施工平面図を取り込んで、背景に設定しておく方法をおすすめします⤴️
そうする事でコメントが無くても何の既定断面か分かります👀
何故この様な記事かと言われれば勿論!
既定断面を忘れてやっちまった事が多々あるぱんだですから(笑)
皆さんは既定断面を絶対忘れない様にしましょう😭
さて、今回は快測ナビの記事です。
タイトルにもありますが、快測ナビに自動ブレーキは有りません!
ん?なになに?
では、🐼なりの解説です。
まずはこちら

感の鋭い人はこの時点で分かるかと😁
この図面は計画図面から色々書込みして作成したぱんだなりの施工平面図です⤴️
う〜ん。ここまで色々書き込む事が良いのかどうか、何気に時間かかるし🌀
では、これをSiTECH3Dでデータ作成する際に気をつけなればならない所は
こちら

この赤丸の2個所です。
1つはカーブとカーブがぶつかる折れ点です。
もう一つは高さの折れ点です。
ではデータ作成します。

出来ました⤴️
黄色の四角は折れ点なので路線で測点をいれてます。
赤色の丸の所は高さの変化点なので縦断で入れてます。なのでどちらも既定断面として登録されてます。
さて、ここから本題です。
ちと、若者の快測ナビの使い方のサポートで入ってる現場へ行った際に快測ナビを見ると、このSiTECH3Dのデータのみで背景にこの図面は配置されて無かったんですよ😅
その若者は、背景図を見る事も無く丁張りを入れてました✋
う〜ん。なんかモヤモヤしますね😓
快測ナビのデータは垂れ流し、リアルタイムな状態なので、常にそのプリズムを立てた個所のデータを表示します。
ロックをしない限り。
そう、自動ブレーキは無いので、自ら変化点、既定断面でブレーキを踏まないと、大変な事になります。
例えば、
バーチカルの起終点
拡幅の起終点、変化点
カーブの起終点
高さの変化点
R同士がぶつかる折れ点
Rの起終点
クロソイドの起終点
あと、何があるかな??
そら、必ず忘れずに、既定断面でロックすれば間違いは無いです。またコメントを入れておけば。
ただ、このコメントはパッケージでないと表示されません✋
このコメントは快測ナビだけの物だから、パッケージ出力でないと無理なんでしょうね💧
さて、何が言いたいかと言うと、必ず背景図は設定して確認しながら、丁張りを入れないと絶対既定断面を忘れる可能性が有るような気がします。
体に必ず既定断面をチェックする、そこに丁張りを入れるって叩き込んでいたらえんですけど、なかなかね〜
また、自分でデータを作成せずに貰った快測ナビのデータで作業してとなれば尚更、施工平面図は必要かなと。
必ず既定断面で丁張りを入れてたら、何も問題無いって意見もその通りだと思います👊
ただ、コメントが無ければ、何に対しての既定断面かは不明です😱
どの様にするかは使う人次第だとは思いますが、ぱんだとしては作り込んだ施工平面図を取り込んで、背景に設定しておく方法をおすすめします⤴️
そうする事でコメントが無くても何の既定断面か分かります👀
何故この様な記事かと言われれば勿論!
既定断面を忘れてやっちまった事が多々あるぱんだですから(笑)
皆さんは既定断面を絶対忘れない様にしましょう😭
SiTECH3D Vol.142 何が優先か?😵
どもサイテリストぱんだ🐼です。
さて、今回は路線の設定において重要な話です。
まずはこちら


同時に2枚目アップしましたが、何が違うが。
1枚目の水色は路線を水路底センター、高さも水路底センターに設定。
2枚目のピンク色は水路天端のセンターに路線、高さも水路の天端に設定。
因みに、水路底からの比高を設定しているのでは無く、水路の天端を計算?CADで読み取りしています。
この違い分かりますか??
あっ!勿論どちらとも二次製品なので急勾配の個所は鉛直方向の寸法を修正しています😁
う〜ん。この写真って、やっちまった記事の時のやつですね(笑)
では、この2つの路線を重ねてみます

明らかに水路の天端が違いますね✋
基本、水路の丁張りは天端からの上がり若しくは天端丁度で入れます。
そうなるとこの2つの路線設定では、それぞれ丁張りの高さが変わります。
故に、据えた二次製品の高さも必然と変わります😱
そして重要なのはどちらのSiTECH3Dのデータも正解なんです!
これはサポートへ電話をかけてもどちらも正解ですって回答になると思います✋
って言われるんじゃ無いですかね(謎)
何故どちらも正解なのか?
ここからは持論なので、KENTEMさんとは考え方?捉え方?
また、土木施工者の皆様とは違うかも知れません。
では。
大事な事?重要な事は‼️
どちらを優先?選択?するかですね👊
1枚目の水色を選択する場合は水路底を優先する場合、水路底に段差を設けない場合ですね。
う〜ん。例えば近くに構造も無く、天端に段差が出来ても構わないから、水の流れを優先する場合ですね。
この場合は水路底の展開図に忠実です。
2枚目のピンク色の場合は、水路の天端を優先する場合、天端に段差を設け無い場合ですね。
う〜ん。例えば天端が小段、道路のスソとかで水路底に段差が出来ても構わないから天端の仕上がりの見栄えを優先する場合ですね。
この場合は水路底の展開図とはズレます。
う〜ん。説明になってる様な、なって無い様な(笑)
これはある程度の経験が無いと、底か天端か、どちらを優先するか迷いますね🌀
2次元だと曖昧?誤魔化す?拘らない?分からない部分も3次元ならその部分が露わになります。
それが3次元、3Dです😱
3Dで誤魔化し、曖昧は有りません💧
3Dにはメリットとデメリットがあります。
メリットとしては
工事が始まる前に完成の3Dが出来てイメージしやすい。
干渉が確認出来る。
不具合個所が見つかる。
デメリットとしては
作成にどうしても時間がかかる。
色々な場面、場所で何を優先して、仕舞をどうしたらえ〜か悩む、ツボにハマる。今回の段差の様に⤵️
ここで疑問が💧
例えば、設計や施工の3Dを作成を土建屋から受けて、生業としてる人はどないしてるんでしょうね🌀こんな場合。
土建屋を経験してる人ならある程度何を優先するか分かりますが、ほぼ土建屋の経験の無い人が作成するとなる😵
疑問ですね、打合せ等でここどうします?どう仕舞しますか?何を優先しますか?ってヒアリングするですかね🌀
請けで金銭が発生するから間違いも許され無いですからね〜😱
請けでデータ作成してる人って凄いプレッシャーの中でデータ作成してるんでしょうね😭ぱんだには絶対無理ですね(笑)
プレッシャーには弱いし、間違いだらけですから💧
KENTEMさんにも
ってサービスあります。
どんな経験豊富な専任のオペレーターさんが作成してるんでしょね😀
気になりますね‼️
こんな場合はどう処理してるんやろか🌀
ぱんだの場合はほぼ独学やし答えが何か?正解が何か分からないまま突き進んでますが、これから始める方や勉強の為に一度サービスを依頼して、3Dの正解のデータを貰うのも良いかも知れませんね⤴️⤴️
そしたら、自分のデータ作成方法が正解か、自分のデータの作成方法の何が駄目なのかまた、作成のコツも分かると思います⤴️⤴️
多分ぱんだが作成したデータはKENTEM-TECHの達人が見たらツッコミどころ満載なんでしょうね😱😱😱
はい!
そんなツギハギだらけのデータ作成する、ぱんだが書いてるブログに来て頂き、また最後まで読んで頂きありがとうございます🙏
ではでは、本日もご安全に👷♀
さて、今回は路線の設定において重要な話です。
まずはこちら


同時に2枚目アップしましたが、何が違うが。
1枚目の水色は路線を水路底センター、高さも水路底センターに設定。
2枚目のピンク色は水路天端のセンターに路線、高さも水路の天端に設定。
因みに、水路底からの比高を設定しているのでは無く、水路の天端を計算?CADで読み取りしています。
この違い分かりますか??
あっ!勿論どちらとも二次製品なので急勾配の個所は鉛直方向の寸法を修正しています😁
う〜ん。この写真って、やっちまった記事の時のやつですね(笑)
では、この2つの路線を重ねてみます

明らかに水路の天端が違いますね✋
基本、水路の丁張りは天端からの上がり若しくは天端丁度で入れます。
そうなるとこの2つの路線設定では、それぞれ丁張りの高さが変わります。
故に、据えた二次製品の高さも必然と変わります😱
そして重要なのはどちらのSiTECH3Dのデータも正解なんです!
これはサポートへ電話をかけてもどちらも正解ですって回答になると思います✋
って言われるんじゃ無いですかね(謎)
何故どちらも正解なのか?
ここからは持論なので、KENTEMさんとは考え方?捉え方?
また、土木施工者の皆様とは違うかも知れません。
では。
大事な事?重要な事は‼️
どちらを優先?選択?するかですね👊
1枚目の水色を選択する場合は水路底を優先する場合、水路底に段差を設けない場合ですね。
う〜ん。例えば近くに構造も無く、天端に段差が出来ても構わないから、水の流れを優先する場合ですね。
この場合は水路底の展開図に忠実です。
2枚目のピンク色の場合は、水路の天端を優先する場合、天端に段差を設け無い場合ですね。
う〜ん。例えば天端が小段、道路のスソとかで水路底に段差が出来ても構わないから天端の仕上がりの見栄えを優先する場合ですね。
この場合は水路底の展開図とはズレます。
う〜ん。説明になってる様な、なって無い様な(笑)
これはある程度の経験が無いと、底か天端か、どちらを優先するか迷いますね🌀
2次元だと曖昧?誤魔化す?拘らない?分からない部分も3次元ならその部分が露わになります。
それが3次元、3Dです😱
3Dで誤魔化し、曖昧は有りません💧
3Dにはメリットとデメリットがあります。
メリットとしては
工事が始まる前に完成の3Dが出来てイメージしやすい。
干渉が確認出来る。
不具合個所が見つかる。
デメリットとしては
作成にどうしても時間がかかる。
色々な場面、場所で何を優先して、仕舞をどうしたらえ〜か悩む、ツボにハマる。今回の段差の様に⤵️
ここで疑問が💧
例えば、設計や施工の3Dを作成を土建屋から受けて、生業としてる人はどないしてるんでしょうね🌀こんな場合。
土建屋を経験してる人ならある程度何を優先するか分かりますが、ほぼ土建屋の経験の無い人が作成するとなる😵
疑問ですね、打合せ等でここどうします?どう仕舞しますか?何を優先しますか?ってヒアリングするですかね🌀
請けで金銭が発生するから間違いも許され無いですからね〜😱
請けでデータ作成してる人って凄いプレッシャーの中でデータ作成してるんでしょうね😭ぱんだには絶対無理ですね(笑)
プレッシャーには弱いし、間違いだらけですから💧
KENTEMさんにも
KENTEM-TECH
ってサービスあります。
どんな経験豊富な専任のオペレーターさんが作成してるんでしょね😀
気になりますね‼️
こんな場合はどう処理してるんやろか🌀
ぱんだの場合はほぼ独学やし答えが何か?正解が何か分からないまま突き進んでますが、これから始める方や勉強の為に一度サービスを依頼して、3Dの正解のデータを貰うのも良いかも知れませんね⤴️⤴️
そしたら、自分のデータ作成方法が正解か、自分のデータの作成方法の何が駄目なのかまた、作成のコツも分かると思います⤴️⤴️
多分ぱんだが作成したデータはKENTEM-TECHの達人が見たらツッコミどころ満載なんでしょうね😱😱😱
はい!
そんなツギハギだらけのデータ作成する、ぱんだが書いてるブログに来て頂き、また最後まで読んで頂きありがとうございます🙏
ではでは、本日もご安全に👷♀
SiTECH3D Vol.141 どうする?😵
どもサイテリストぱんだ🐼です⤴️
さてこの所サイテック3Dネタばっかですね😅
では、こちら

ええ〜またこのシリーズなん??
はい⤵️またこのシリーズです😭
このデータは前からブログで使用しているデータなのでほぼ、完成してます✋
が、
前回までのデータには均しコンが含まれてません!
では、均しコンを入れた場合はどうなるか!💪
ここで!感の良い人は結末?結果?どうなるかはお分かりだと思います👀
なので、スルーで🆗です
では
行きますよ〜
あっと、その前に1枚目の写真の所で測点の所を見て頂ければ分かるとおもいますが折れ点の前後に追加測点を先に入れてます。測点のみです。データはまだです。

BPに重力式擁壁と均しコンデータをトレースしました✋
因みに、BPのデータでは無く、1番大きい構造物の測点のデータをトレースしてます。
これを一気に複写します。
出来たのがこちら

ここから、各測点のデータを修正していきます✋
出来たのがこちら

KENTEMさんすいません、またまた折れ点区間自動作成は使ってません⤵️
ごめんなさい😭😭
さて、パット見はなんら問題無い様に見えますが、問題は有ります😥
重力式擁壁のデータを非表示にしてみます👀

分かりにくいので問題個所を拡大します👀

青丸の所です。均しコンがクロスしています⤵️⤵️⤵️
これを平面図に作画してみます

青丸の所でデータが重複しているので、色が濃くなっているのがわかると思います✋
では次に均しコンを基本とした垂線を入れてみます

ここ青色の垂線の所が肩から均しコンの交点から垂線を落とした線です✋
では、見にくいので均しコンのデータを非表示にします

平面図には均しコンの線は描画していません✋
スソの位置の垂線とは当然ズレますよね😅
だから??
均しコンがクロスしない様に均しコンを基本とするにはこの位置に追加測点を入れる必要が有ります✋
そうする構造物の重力式擁壁のスソを基本とする追加測点とはズレます⤵️⤵️
勾配が緩ければ何も問題は有りませんが、くの字折れ曲がり角度、天端の勾配によってはこのズレが大きくなる場合もあると思います✋
では、今回の場合はどれほどクロスした位置で高さの差があるか確認してみます
平面図で言うと左側のIP.1の個所です

比高が11mmとなっています。
大きいと言えば大きい、小さいと言えば小さいですね😥
床付なら問題無いですが⤴️、均しコンの天端となると問題ですね⤵️
では、最後に写真がこちら

このモノクロのハッチの部分はレベルです。
そして追加測点〜折れ点〜追加測点の間は快測ナビでは折れ点区間と表示されデータを見る事は出来ません😱
ただ、快測ナビAdvなら赤線方向にロック出来るので、赤線方向のみデータは表示されます‼️
ってかね、この部分をどんなに拘っても快測ナビのどこでも丁張りで床付したり、位置を出そうと思っても重力式擁壁のスソを基準に考えると全ての辻褄があったデータは無理なんですよ👊
だからって辻褄が合うように、均しコンを基準に考えるのもなんか違うと思います👊
ここからまたまたぱんだの持論です!
床付をどこも丁張りでするなら10mmなんてどーでもえんですよ❗
んで、このレベルの部分はレベルなんだからどこも丁張りでロックして範囲を決めて快測ナビで高さだけ見たらえんですよ❗
んで、均しコンの位置をCAD測設で出したらえんですよ❗
均しコンの天端はレベルなり快測ナビで見たらえんですよ❗
均しコンに墨を打つなら、CAD測設でもライン観測でも、どこも丁張りでも好きな方法、間違わない方法で出したらえんですよ❗
大事なのは
何が何でも快測ナビでする‼️
3Dデータを絶対使う‼️
そうじゃ無いんですよ‼️‼️‼️
大事なのは
間違わない位置出しをする‼️
3Dデータを上手く活用する‼️
良いですか!大事な事言います!
快測ナビに使われるんじゃ無くて
快測ナビを使う!
SiTECH3Dのデータに振り回されるんじゃ無くて、SiTECH3DのデータをTPOに応じて使う!
これが私が思う普段使いのICTです🎵
そして!!
ぱんだは快測ナビに使われてます(笑)
ぱんだはSiTECH3Dに振り回されてます(笑)
本当の最後に
決してKENTEMの快測ナビ、SiTECH3Dを批判するつもりは有りません!
これだけは分かって下さい❗
ぱんだはKENTEMラブです🥰
ではでは、本日もご安全に👷♀
さてこの所サイテック3Dネタばっかですね😅
では、こちら

ええ〜またこのシリーズなん??
はい⤵️またこのシリーズです😭
このデータは前からブログで使用しているデータなのでほぼ、完成してます✋
が、
前回までのデータには均しコンが含まれてません!
では、均しコンを入れた場合はどうなるか!💪
ここで!感の良い人は結末?結果?どうなるかはお分かりだと思います👀
なので、スルーで🆗です
では
行きますよ〜
あっと、その前に1枚目の写真の所で測点の所を見て頂ければ分かるとおもいますが折れ点の前後に追加測点を先に入れてます。測点のみです。データはまだです。

BPに重力式擁壁と均しコンデータをトレースしました✋
因みに、BPのデータでは無く、1番大きい構造物の測点のデータをトレースしてます。
これを一気に複写します。
出来たのがこちら

ここから、各測点のデータを修正していきます✋
出来たのがこちら

KENTEMさんすいません、またまた折れ点区間自動作成は使ってません⤵️
ごめんなさい😭😭
さて、パット見はなんら問題無い様に見えますが、問題は有ります😥
重力式擁壁のデータを非表示にしてみます👀

分かりにくいので問題個所を拡大します👀

青丸の所です。均しコンがクロスしています⤵️⤵️⤵️
これを平面図に作画してみます

青丸の所でデータが重複しているので、色が濃くなっているのがわかると思います✋
では次に均しコンを基本とした垂線を入れてみます

ここ青色の垂線の所が肩から均しコンの交点から垂線を落とした線です✋
では、見にくいので均しコンのデータを非表示にします

平面図には均しコンの線は描画していません✋
スソの位置の垂線とは当然ズレますよね😅
だから??
均しコンがクロスしない様に均しコンを基本とするにはこの位置に追加測点を入れる必要が有ります✋
そうする構造物の重力式擁壁のスソを基本とする追加測点とはズレます⤵️⤵️
勾配が緩ければ何も問題は有りませんが、くの字折れ曲がり角度、天端の勾配によってはこのズレが大きくなる場合もあると思います✋
では、今回の場合はどれほどクロスした位置で高さの差があるか確認してみます
平面図で言うと左側のIP.1の個所です

比高が11mmとなっています。
大きいと言えば大きい、小さいと言えば小さいですね😥
床付なら問題無いですが⤴️、均しコンの天端となると問題ですね⤵️
では、最後に写真がこちら

このモノクロのハッチの部分はレベルです。
そして追加測点〜折れ点〜追加測点の間は快測ナビでは折れ点区間と表示されデータを見る事は出来ません😱
ただ、快測ナビAdvなら赤線方向にロック出来るので、赤線方向のみデータは表示されます‼️
ってかね、この部分をどんなに拘っても快測ナビのどこでも丁張りで床付したり、位置を出そうと思っても重力式擁壁のスソを基準に考えると全ての辻褄があったデータは無理なんですよ👊
だからって辻褄が合うように、均しコンを基準に考えるのもなんか違うと思います👊
ここからまたまたぱんだの持論です!
床付をどこも丁張りでするなら10mmなんてどーでもえんですよ❗
んで、このレベルの部分はレベルなんだからどこも丁張りでロックして範囲を決めて快測ナビで高さだけ見たらえんですよ❗
んで、均しコンの位置をCAD測設で出したらえんですよ❗
均しコンの天端はレベルなり快測ナビで見たらえんですよ❗
均しコンに墨を打つなら、CAD測設でもライン観測でも、どこも丁張りでも好きな方法、間違わない方法で出したらえんですよ❗
大事なのは
何が何でも快測ナビでする‼️
3Dデータを絶対使う‼️
そうじゃ無いんですよ‼️‼️‼️
大事なのは
間違わない位置出しをする‼️
3Dデータを上手く活用する‼️
良いですか!大事な事言います!
快測ナビに使われるんじゃ無くて
快測ナビを使う!
SiTECH3Dのデータに振り回されるんじゃ無くて、SiTECH3DのデータをTPOに応じて使う!
これが私が思う普段使いのICTです🎵
そして!!
ぱんだは快測ナビに使われてます(笑)
ぱんだはSiTECH3Dに振り回されてます(笑)
本当の最後に
決してKENTEMの快測ナビ、SiTECH3Dを批判するつもりは有りません!
これだけは分かって下さい❗
ぱんだはKENTEMラブです🥰
ではでは、本日もご安全に👷♀
SiTECH3D Vol.140 どこに路線を設定するか😵
どもサイテリストぱんだ🐼です。
もう最近、展開図ネタ?展開図に取り憑かれてます😭😭
まずはこちら

ダミーで作りました!
重力式擁壁の展開図です!
もう一度言います❗‼️‼️‼️
重力式擁壁の展開図です👊👊👊👊👊
話は戻って、この展開図ですが、素人のぱんだが作成しているので、この展開図が合ってるかどうかは疑問です(笑)
そしてこの展開図は見ての通り、勾配面側、そしてブロック積みの展開図とは違って直高で作成しています。
う〜ん。展開図は怪しいと思います。
特に開きとか(笑)
さて、タイトルにもありますが!
どこに路線を設定するかです。
先ずは勾配面の肩に路線を設定します。
では、サイテック3Dでデータ作成です。

出来ました😁
因みにですが、折れ点自動作成は使ってません✋
とっても便利なんでしょうが、ぱんだはなんせアナログ?昔からやり方が好きなので😅
そして、その時々によってかわりますが、折れ点二等分角方向の構造図も用意してます。
これはサイトストラクチャーでも作成する為ですね、サイテック3Dだけなら折れ点個所の二等分角方向は横縮尺だけ伸ばしてトレースします。
また話が脱線しましたが💧
一見問題無い様に見えますが、当然問題は存在します。
スペシャリストの皆様ならお分かりですね😣
拡大してみます

段差が発生してます😱
当然ですよね、勾配面に路線を設定して、折れ点を計画高に設定してるから当然折れ点の手前の追加測点の天端はこの場合折れ点よりは低くなります。
そしてその追加測点の自動計算された標高は後ろの直壁面へはレベルになります。
その追加測点が折れ点の二等分角方向とほぼ同じになるなら写真の様に段差が出来ます⤵️
ただ、この折れ点の奥側へはレベルなので奥側には段差が発生しません✋
もー活字ばっかで良く分からないですね⤵️読むのもめんどくさい⤵️⤵️ってなりますね😭
では、勾配面では無く、直壁側の肩に路線を設定した場合です。

では、問題となるちょうど赤色の断面の所をアップします👀

おお〜段差が発生してません‼️
そして計画標高はこの折れ点部分に入れてます✋
この折れ点の前後の追加測点の天端標高はSiTECH3Dの自動計算です🎵
そして、今回も折れ点自動作成は使用して居ません😅
もーこんだけ折れ点自動作成を使って無かったらKENTEMさんに怒られますね💧
話は戻って、この折れ点の前後の追加測点は-1mm、+1mmで入れてます。
くの字の折れ点だから出来る技ですね😅
逆くの字ではこのギリギリは無理ですね😱
ん?なんか何処かに折れ点の前後は何mm以上離して下さいってあった様な🌀
記憶違いだったらすいません⤵️
詳しくは📲です
この様に直折れの場合、どこに路線を設定するかで作成されたデータに違いが出てきます🌀
って、そんなんもー分かってるわ!
ぱんださん、今頃気づいたん??
って言われそうですが、今回始めて気付きました(笑)
ヤバすぎですね💧
さて。ではどちらに路線を作るのが正解か!
ここから本題です😁長ーーい前置きですね💧
記事の最初に2回も書きましたが、これは重力式擁壁です✋
ここから、持論になります。
直壁面側に路線を設定するのがぱんだの中では正解です。
なせが!
重力式擁壁の場合は均しコンに必ず直壁面の墨を打ちます!
この墨が命です❗
場合により、勾配面のスソ墨も入れます。
そして型枠大工さんが直壁面に型枠を建ててくれます。
そうすると、天端出して〜ってなります💪
天端を出すと、そこからセパ割した墨を大工さんが打ちます⤴️
全国的はどうか分かりませんが、ぱんだの地方では天端墨からセパ割の墨を入れたらそれで終わりです✋
後は、セパを差し込んだら型枠を建て込むだけです。
大事なのは先に型枠を建てる、直壁面の墨、高さだけです👊👊👊👊
なので、路線を直壁面にするのが正解だと思います✋
これ、勝手な持論なので、正解はサポートへ📲してトレーナーの方に教えて貰うのが良いと思います😁
年度末なのでちと順番待ちにはなりますが💧
そうそう!
少し前にサポートへの繋ぎ方が変わって、何人待ちって出てるの良いですよね⤴️
最後に勝手な持論、また長文お付き合い頂きありがとうございます😀
ではでは、本日もご安全に👷♀
もう最近、展開図ネタ?展開図に取り憑かれてます😭😭
まずはこちら

ダミーで作りました!
重力式擁壁の展開図です!
もう一度言います❗‼️‼️‼️
重力式擁壁の展開図です👊👊👊👊👊
話は戻って、この展開図ですが、素人のぱんだが作成しているので、この展開図が合ってるかどうかは疑問です(笑)
そしてこの展開図は見ての通り、勾配面側、そしてブロック積みの展開図とは違って直高で作成しています。
う〜ん。展開図は怪しいと思います。
特に開きとか(笑)
さて、タイトルにもありますが!
どこに路線を設定するかです。
先ずは勾配面の肩に路線を設定します。
では、サイテック3Dでデータ作成です。

出来ました😁
因みにですが、折れ点自動作成は使ってません✋
とっても便利なんでしょうが、ぱんだはなんせアナログ?昔からやり方が好きなので😅
そして、その時々によってかわりますが、折れ点二等分角方向の構造図も用意してます。
これはサイトストラクチャーでも作成する為ですね、サイテック3Dだけなら折れ点個所の二等分角方向は横縮尺だけ伸ばしてトレースします。
また話が脱線しましたが💧
一見問題無い様に見えますが、当然問題は存在します。
スペシャリストの皆様ならお分かりですね😣
拡大してみます

段差が発生してます😱
当然ですよね、勾配面に路線を設定して、折れ点を計画高に設定してるから当然折れ点の手前の追加測点の天端はこの場合折れ点よりは低くなります。
そしてその追加測点の自動計算された標高は後ろの直壁面へはレベルになります。
その追加測点が折れ点の二等分角方向とほぼ同じになるなら写真の様に段差が出来ます⤵️
ただ、この折れ点の奥側へはレベルなので奥側には段差が発生しません✋
もー活字ばっかで良く分からないですね⤵️読むのもめんどくさい⤵️⤵️ってなりますね😭
では、勾配面では無く、直壁側の肩に路線を設定した場合です。

では、問題となるちょうど赤色の断面の所をアップします👀

おお〜段差が発生してません‼️
そして計画標高はこの折れ点部分に入れてます✋
この折れ点の前後の追加測点の天端標高はSiTECH3Dの自動計算です🎵
そして、今回も折れ点自動作成は使用して居ません😅
もーこんだけ折れ点自動作成を使って無かったらKENTEMさんに怒られますね💧
話は戻って、この折れ点の前後の追加測点は-1mm、+1mmで入れてます。
くの字の折れ点だから出来る技ですね😅
逆くの字ではこのギリギリは無理ですね😱
ん?なんか何処かに折れ点の前後は何mm以上離して下さいってあった様な🌀
記憶違いだったらすいません⤵️
詳しくは📲です
この様に直折れの場合、どこに路線を設定するかで作成されたデータに違いが出てきます🌀
って、そんなんもー分かってるわ!
ぱんださん、今頃気づいたん??
って言われそうですが、今回始めて気付きました(笑)
ヤバすぎですね💧
さて。ではどちらに路線を作るのが正解か!
ここから本題です😁長ーーい前置きですね💧
記事の最初に2回も書きましたが、これは重力式擁壁です✋
ここから、持論になります。
直壁面側に路線を設定するのがぱんだの中では正解です。
なせが!
重力式擁壁の場合は均しコンに必ず直壁面の墨を打ちます!
この墨が命です❗
場合により、勾配面のスソ墨も入れます。
そして型枠大工さんが直壁面に型枠を建ててくれます。
そうすると、天端出して〜ってなります💪
天端を出すと、そこからセパ割した墨を大工さんが打ちます⤴️
全国的はどうか分かりませんが、ぱんだの地方では天端墨からセパ割の墨を入れたらそれで終わりです✋
後は、セパを差し込んだら型枠を建て込むだけです。
大事なのは先に型枠を建てる、直壁面の墨、高さだけです👊👊👊👊
なので、路線を直壁面にするのが正解だと思います✋
これ、勝手な持論なので、正解はサポートへ📲してトレーナーの方に教えて貰うのが良いと思います😁
年度末なのでちと順番待ちにはなりますが💧
そうそう!
少し前にサポートへの繋ぎ方が変わって、何人待ちって出てるの良いですよね⤴️
最後に勝手な持論、また長文お付き合い頂きありがとうございます😀
ではでは、本日もご安全に👷♀
SiTECH3D Vol.139 やっちまった😱
どもサイテリストぱんだ🐼です。
タイトルにありますが、やっちまった‼️
すんげー失敗です⤵️⤵️⤵️⤵️😭😭😭
日頃ブログを読んで下さってる方はご存知と思いますが、ぱんだは失敗ばっかしてますが💧その中でもかなりヤバいです⤵️⤵️⤵️
何をやっちまったか!!
それは!!!
データ間違って作成して、現場からの指摘で発覚?分かりました👊
調子に乗ってブログ書いたり、あーだ、こーだと言ってるからですね⤵️⤵️
っと言いながらブログ書いてますが💧
恥を忍んで失敗を書きたいと思います😵
まずはこちら

ん?いつもの感じの図面ですやん!
すいません😅流石に原本の現場図面はアップ出来ないので、ダミーの図面になります✋
まず、現場から頂いたのはこの様な二次製品の水路の平面図、水路展開図
そして二次製品の水路の構造図を拡大します。

かなり大きめの二次製品です。
因みにこの二次製品もダミーの形状です。
なので、カタログ探してもこの形状は有りません💧
そう!二次製品です!
もう一度言います、二次製品の大型水路です。それもかなりの縦断勾配がある!
更に言います!縦断勾配がキツい二次製品の大型水路です‼️‼️‼️
ここで
あっ!!
アレやな!!
やっちまったなぱんださん‼️‼️
ってなる方は凄いです!!
そうです!それをやっちゃいました⤵️
では、再現します😭😭
先程の1枚目の写真ですが、既に路線を設定しています。
そして、2枚目の写真は既に構造物を作成したSiTECH3Dの横断です。
路線は水路センターに設定
高さの設定は水路底です。離れ、比高は使わない様にしてます。
では、通常通り、このデータを一気に複写します。

当然直折れなのでこーなります。
では、各折れ点の前に追加測点を入れて修正します。

うん、良い感じですね⤴️
もー余裕🎵
さぁ〜出来た⤴️⤴️⤴️
現場へデータを送りま〜す😁
さぁ〜次のデータ作成しょーや😁
ここから、再現VTR風に
そして多少のフェイク入れてます。
それから何日かして、現場から📲が
現場監督「ぱんださん、快測ナビで掘削して、快測ナビで丁張り入れて、均しコン打って、据えたんですけど、何か合わないんですけど・・・」
ぱんだ「何が合わないの??」
現場監督「えっとですね、起点の急勾配の水路据えたんどすけど、起点の位置の底高が設計と違うんですよ」
ぱんだ「えっ!どれぐらい違うの?」
現場監督「えっとですね、10㌢程」
ぱんだ「・・・・・・あっ!」
現場監督「どど、どしたんですか?」
ぱんだ「す、す、すいません!やってしまいました!」
現場監督「えっと・・・どうなるんですか??」
ぱんだ「施工のやり直しになります」
現場監督「ええええええ!!」
これがやっちまった話です。
では、何をやっちまったか‼️
凡ミスです。
最初に書きましたがこれは大型水路の二次製品、そして急勾配✋
っとなると

これです👊👊👊
鉛直か垂直か‼️‼️‼️
二次製品なのに、急勾配なのに鉛直でデータ作成やってました⤵️⤵️⤵️
現場打ちなら何の問題も有りませんが、二次製品なので鉛直では無く垂直方向なんです😱
この場合水路の鉛直の高さは右側の1.104なんです‼️
それを忘れて、二次製品の寸法通りの😀1.000でデータを作成していたんです⤵️
そら合わないですよね、10㌢😱
スペシャリストな皆さんならこんな初歩的な間違いは無いと思います。
また、また始めたての人は常に注意を払ってるのでこんなミスは無いと思います。
お調子者のお馬鹿なぱんだだから、起こしたミスです。
では、このミスにより何が起きるか!
全ての場面、場所とは思いませんが
3Dでやってこの結果?
一体なんなん?
これやったら従来の手計算で丁張り入れてたらこんなミス起きないやん。
あかんね、3D施工ゆんも
もー良いですよ✋今後は現場は従来工法の丁張りと水糸で行います。
こんな風に言われれば、言い返す言葉は有りません⤵️
これはあくまで極端な話ですが、ここまで行かなくても多少はあり得る話だと思います⤵️
従来工法の丁張りと水糸で行っていた場合にミスをしたとしても、怒られはしますが、しょうがない⤵️って言葉で終わります。
しかし、普段使いIのCT、3D施工でこれをやっちゃうと、ミスを責められるのでは無く、普段使いのICTや3D施工そのものを否定されます⤵️
なんか不条理ですよね。
そうなると、普段使いのICTや3D施工は今後取り入れない、取り組まないって結果になります⤵️⤵️
モヤモヤしますよね。
ミスをミスとしてでは無く、ミスによって普段使いのICTや3D施工を否定されるのって。
また、現場を知らないヤツがするからこーなる。
現場をまだまだ分からん若い奴がするからこーなる。
そうなると、結局データ作成してる人は萎縮し、若いデータ作成者やチャレンジャーも萎縮、またはデータ作成を止める人も。
そうなら無い為にもデータ作成にミスは許され無いんです⤵️
ミス=否定なんですから😫
いやいや、ミスばっかしてるぱんだが言うのもどうかと思いますが(笑)
皆さんは多分、そばに相談出来る人、教えてくれる人、共有し合える仲間が居るからこんな事は無いと思います⤴️
インカーワークで、常にさすらうぱんだはいつも孤独で、誰にも頼れず、誰とも色んな事を共有出来ず、ただひたすら孤独に間違った道を進むだけです(笑)
ただ、そんな孤独でさすらうぱんだですが、KENTEM愛は誰にも負けない❤️
KENTEMが好きだから〜🥰
あっ!ストーカー並みの片思いですが(笑)
そして、ぱんだがリスペクトするのは、開発者である神、そして秒で答えをくれるトレーナーの皆様、そしてかゆい所に手が届くボタンをいつも追加してくれるプログラマーの方達。
いつも思う、プログラマーの人ってすげーなって😱何をどうして、どうなって、こーなって、こんなボタン追加出来るんっておっそろし〜い位、頭えんやろな😭
KENTEMの全てのお方達の存在が無ければ、今のぱんだは存在しません‼️
ちとキモいですね(笑)
さてそて、内容はなんかネガティブな話と、キモくなりましたが、間違わないデータを皆さん作成しましょう😁ってぱんだが言うなですね(笑)
ではでは、本日もご安全に👷♀
タイトルにありますが、やっちまった‼️
すんげー失敗です⤵️⤵️⤵️⤵️😭😭😭
日頃ブログを読んで下さってる方はご存知と思いますが、ぱんだは失敗ばっかしてますが💧その中でもかなりヤバいです⤵️⤵️⤵️
何をやっちまったか!!
それは!!!
データ間違って作成して、現場からの指摘で発覚?分かりました👊
調子に乗ってブログ書いたり、あーだ、こーだと言ってるからですね⤵️⤵️
っと言いながらブログ書いてますが💧
恥を忍んで失敗を書きたいと思います😵
まずはこちら

ん?いつもの感じの図面ですやん!
すいません😅流石に原本の現場図面はアップ出来ないので、ダミーの図面になります✋
まず、現場から頂いたのはこの様な二次製品の水路の平面図、水路展開図
そして二次製品の水路の構造図を拡大します。

かなり大きめの二次製品です。
因みにこの二次製品もダミーの形状です。
なので、カタログ探してもこの形状は有りません💧
そう!二次製品です!
もう一度言います、二次製品の大型水路です。それもかなりの縦断勾配がある!
更に言います!縦断勾配がキツい二次製品の大型水路です‼️‼️‼️
ここで
あっ!!
アレやな!!
やっちまったなぱんださん‼️‼️
ってなる方は凄いです!!
そうです!それをやっちゃいました⤵️
では、再現します😭😭
先程の1枚目の写真ですが、既に路線を設定しています。
そして、2枚目の写真は既に構造物を作成したSiTECH3Dの横断です。
路線は水路センターに設定
高さの設定は水路底です。離れ、比高は使わない様にしてます。
では、通常通り、このデータを一気に複写します。

当然直折れなのでこーなります。
では、各折れ点の前に追加測点を入れて修正します。

うん、良い感じですね⤴️
もー余裕🎵
さぁ〜出来た⤴️⤴️⤴️
現場へデータを送りま〜す😁
さぁ〜次のデータ作成しょーや😁
ここから、再現VTR風に
そして多少のフェイク入れてます。
それから何日かして、現場から📲が
現場監督「ぱんださん、快測ナビで掘削して、快測ナビで丁張り入れて、均しコン打って、据えたんですけど、何か合わないんですけど・・・」
ぱんだ「何が合わないの??」
現場監督「えっとですね、起点の急勾配の水路据えたんどすけど、起点の位置の底高が設計と違うんですよ」
ぱんだ「えっ!どれぐらい違うの?」
現場監督「えっとですね、10㌢程」
ぱんだ「・・・・・・あっ!」
現場監督「どど、どしたんですか?」
ぱんだ「す、す、すいません!やってしまいました!」
現場監督「えっと・・・どうなるんですか??」
ぱんだ「施工のやり直しになります」
現場監督「ええええええ!!」
これがやっちまった話です。
では、何をやっちまったか‼️
凡ミスです。
最初に書きましたがこれは大型水路の二次製品、そして急勾配✋
っとなると

これです👊👊👊
鉛直か垂直か‼️‼️‼️
二次製品なのに、急勾配なのに鉛直でデータ作成やってました⤵️⤵️⤵️
現場打ちなら何の問題も有りませんが、二次製品なので鉛直では無く垂直方向なんです😱
この場合水路の鉛直の高さは右側の1.104なんです‼️
それを忘れて、二次製品の寸法通りの😀1.000でデータを作成していたんです⤵️
そら合わないですよね、10㌢😱
スペシャリストな皆さんならこんな初歩的な間違いは無いと思います。
また、また始めたての人は常に注意を払ってるのでこんなミスは無いと思います。
お調子者のお馬鹿なぱんだだから、起こしたミスです。
では、このミスにより何が起きるか!
全ての場面、場所とは思いませんが
3Dでやってこの結果?
一体なんなん?
これやったら従来の手計算で丁張り入れてたらこんなミス起きないやん。
あかんね、3D施工ゆんも
もー良いですよ✋今後は現場は従来工法の丁張りと水糸で行います。
こんな風に言われれば、言い返す言葉は有りません⤵️
これはあくまで極端な話ですが、ここまで行かなくても多少はあり得る話だと思います⤵️
従来工法の丁張りと水糸で行っていた場合にミスをしたとしても、怒られはしますが、しょうがない⤵️って言葉で終わります。
しかし、普段使いIのCT、3D施工でこれをやっちゃうと、ミスを責められるのでは無く、普段使いのICTや3D施工そのものを否定されます⤵️
なんか不条理ですよね。
そうなると、普段使いのICTや3D施工は今後取り入れない、取り組まないって結果になります⤵️⤵️
モヤモヤしますよね。
ミスをミスとしてでは無く、ミスによって普段使いのICTや3D施工を否定されるのって。
また、現場を知らないヤツがするからこーなる。
現場をまだまだ分からん若い奴がするからこーなる。
そうなると、結局データ作成してる人は萎縮し、若いデータ作成者やチャレンジャーも萎縮、またはデータ作成を止める人も。
そうなら無い為にもデータ作成にミスは許され無いんです⤵️
ミス=否定なんですから😫
いやいや、ミスばっかしてるぱんだが言うのもどうかと思いますが(笑)
皆さんは多分、そばに相談出来る人、教えてくれる人、共有し合える仲間が居るからこんな事は無いと思います⤴️
インカーワークで、常にさすらうぱんだはいつも孤独で、誰にも頼れず、誰とも色んな事を共有出来ず、ただひたすら孤独に間違った道を進むだけです(笑)
ただ、そんな孤独でさすらうぱんだですが、KENTEM愛は誰にも負けない❤️
KENTEMが好きだから〜🥰
あっ!ストーカー並みの片思いですが(笑)
そして、ぱんだがリスペクトするのは、開発者である神、そして秒で答えをくれるトレーナーの皆様、そしてかゆい所に手が届くボタンをいつも追加してくれるプログラマーの方達。
いつも思う、プログラマーの人ってすげーなって😱何をどうして、どうなって、こーなって、こんなボタン追加出来るんっておっそろし〜い位、頭えんやろな😭
KENTEMの全てのお方達の存在が無ければ、今のぱんだは存在しません‼️
ちとキモいですね(笑)
さてそて、内容はなんかネガティブな話と、キモくなりましたが、間違わないデータを皆さん作成しましょう😁ってぱんだが言うなですね(笑)
ではでは、本日もご安全に👷♀






